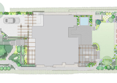
This West Vancouver private residence is designed to offer a peaceful and intimate retreat for the clients. The front yard is thoughtfully arranged around two mature Japanese maple trees, creating a natural focal point. A refined planting palette and elegant lighting enhance the home’s architecture, emphasizing its key features with subtle sophistication.

The rear yard offers a covered lounge with an outdoor fireplace, a hot tub, and a garden shed with raised vegetable planters. At its heart, a spacious lawn provides an inviting space for grandchildren and pets.

Architect: Karl Gustavson 

Interior Design: Renaissance Interiors

LET'S CREATE SOMETHING BEAUTIFUL TOGETHER

Whether you’re starting fresh or refining an idea, we’re here to help. Share your goals with us and we’ll create a custom plan to bring your outdoor space to life—beautiful, functional, and designed for you.